INÍCIO CONHEÇA O ESTAÇÃO PRIME FINANCIAMENTO COMO COMPRAR LOCALIZAÇÃO CONTATO

Localizado próximo

Cooperativa Santa Clara

e Alibem Alimentos S.A.

O residencial oferece a

tranquilidade e o contato

com a natureza que você

sempre desejou!

 

Conheça o estação prime
INÍCIO CONHEÇA O ESTAÇÃO PRIME LOCALIZAÇÃO FINANCIAMENTO COMO COMPRAR CONTATO
imóvel na planta com entrada facilitada!

Descubra o seu novo lar no coração da cidade de Estação, onde a Carllotto Empreendimentos oferece o melhor em conforto e comodidade. Com uma arquitetura moderna e sofisticada o Residencial Estação Prime é o lugar perfeito para você e sua família.

 

O Condomínio Residencial Estação Prime é composto por dois

blocos, A e B, projetados para oferecer conforto,

funcionalidade e qualidade de vida aos moradores.

 - 8 pavimentos;

 - 8 apartamentos por andar;

 

Total: 64 unidades habitacionais;

 - Cada apartamento possui sacada com churrasqueira;

 - 1 vaga de estacionamento por unidade.

 - 9 pavimentos;

 - 4 apartamentos no subsolo;

 - 8 apartamentos por pavimento, do térreo ao 8º andar;

 

Total: 68 unidades habitacionais;

 - Cada apartamento possui sacada com churrasqueira;

 - 1 vaga de estacionamento por unidade.

Conquiste o seu imóvel na planta com a Carllotto Empreendimentos, aqui você encontra Entrada Parcelada e Negociação Facilitada!

Planta humanizada - apartamento
Para quem procura conforto sem perder as vantagens da praticidade!

Área total 49,07m²

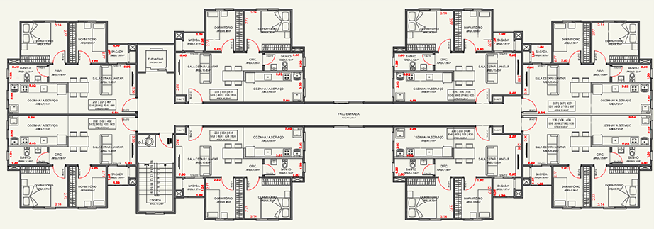
PLANTA BAIXA PAVIMENTO - BLOCOS A/B
PLANTA BAIXA SUBSOLO BLOCO B
sALÕES DE FESTA
CONDOMÍNIO COM AMPLA ÁREA DE LAZER

Pórtico de entrada com guarita;

2 salões de festa;

Quadra poliesportiva de areia;

Playground infantil;

Pista de caminhada;

Quiosque externo.

financiamento

A Carllotto Empreendimentos trabalha com todos os programas habitacionais.  São mais de 27 anos no mercado imobiliário e 10 anos de experiência com o Programa ‘Minha casa, Minha vida’!

O Programa Minha Casa Minha Vida (MCMV) é um programa que foi criado pelo Governo Federal em 2009 para ajudar famílias a alcançarem o sonho da casa própria, facilitando o financiamento dos imóveis. Esse trabalho é feito em parceria com governos municipais, estaduais e empresas que desenvolvem empreendimentos dentro dos parâmetros que se encaixam no programa, que é o caso do Residencial Arvoredo.

 

SUBSÍDIO: O subsídio é um empurrãozinho que o Governo dá na busca pelo seu sonho: ele paga uma parte da sua casa. Você não tem que se preocupar, pois não precisa dar esse dinheiro de volta para o Governo.

 

Os valores dos subsídios que o Governo paga dependem de alguns fatores, como:

 

> Sua renda e a faixa onde ela se encaixa;

> A região onde você vai morar;

> Valor do imóvel.

 

O MCMV oferece o maior parcelamento do mercado. O parcelamento máximo do programa é de 360 meses (30 anos).

 

 

INFRAESTRUTURA

|  Guarita para controle da entrada de pessoas;

|  1 vaga de estacionamento por apartamento;

|  4 vagas de estacionamento destinadas a visitantes;

|  Reservatório superior de água em cada bloco e no salão de festas;

|  Reservatório inferior para abastecimento geral;

|  Espaços verdes de convivência;

|  Estação de tratamento de esgoto própria, garantindo sustentabilidade e eficiência no saneamento.

 

 

 

SOLICITE ATENDIMENTO

Entre em contato com nossos corretores hoje mesmo!

Para adquirir seu tão sonhado imóvel próprio, basta solicitar atendimento de nossos corretores através do botão abaixo. A Carllotto Empreendimentos trabalha com condições únicas de entrada e financiamento!

Localização

Rua Lido Giacomon, Bairro Santuário, Estação - RS

quero ATENDIMENTO
Contato

É um prazer receber seu contato!

 Preencha o formulário abaixo para solicitar o atendimento de nossos corretores.

Você está dando o primeiro passo na direção de realizar o sonho do imóvel próprio!

Enviando formulário…

O servidor encontrou um erro.

Formulário recebido.

Avenida Uruguai, 331 - Centro | Erechim - RS

54 3321-4147

contato@carllotto.com.br

Imagens meramente ilustrativas.

 Incorporação conforme prenotação NOTA 025435A. Incorporação Carllotto Empreendimentos - CRECI 24789-J. Vendas Carllotto Empreendimentos - CRECI 24789-J.

2026 ©  Todos os direitos reservados     |     www.estacaoprime.com.br